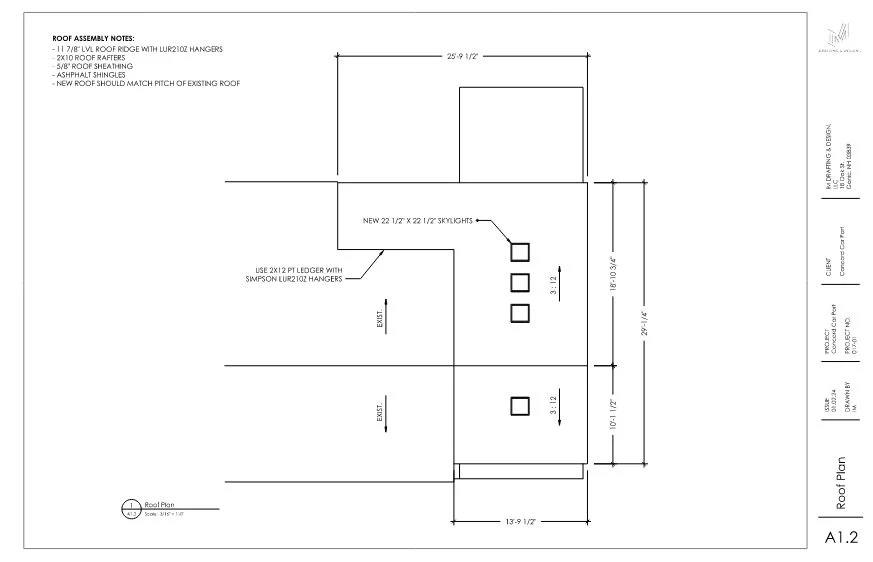
Car Port - Concord
Created a new carport for a client in Concord. The carport needed to remain within the boundaries of the existing driveway and also blend nicely with the existing house.





Car Port - Concord
Created a new carport for a client in Concord. The carport needed to remain within the boundaries of the existing driveway and also blend nicely with the existing house.